Entreprenörsstråket 13, Mölndal

Fasadbild från Entreprenörstråket vinkel 1.jpeg
Öppen yta 1 rok.jpeg
Sovrum 2 rok vinkel 1.jpeg
DSC07072 - stor.jpeg
Skärmbild 2026-04-16 102456.jpg
1/5
Skärmbild 2026-04-16 102456.jpg
Alla bilder (4)
Fasadbild från Entreprenörstråket vinkel 1.jpeg
Öppen yta 1 rok.jpeg
Sovrum 2 rok vinkel 1.jpeg
DSC07072 - stor.jpeg

Om boendet

Tvättmaskin
Ingår
Torktumlare
Ingår
Diskmaskin
Ingår
Hiss
Ingår
Balkong
Ingår
Säkerhetsdörr
Brandklassad
Dusch
Ingår
Kyl & frys
Ingår
Ugn
Ingår
Husdjur tillåtet
Ingår

Ingår i hyran

Värme
Ingår
Visa alla

Finns ej i boendet

Kombinerad tvätt/tork
Ingår inte
Gemensam tvättstuga
Ingår inte
Uteplats
Ingår inte

Ingår inte i hyran

Vatten
Kall- & varmvatten ingår
TV
Basutbud
El
Ingår inte
Bredband
Ingår inte

Tillval

Bredband 1000/1000 Mbps för endast 399 kr/månad
Tillval

Om hyresrätten

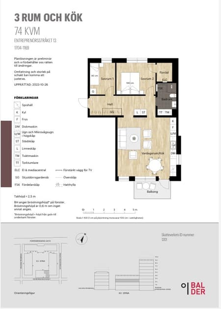
Här ges möjlighet att hyra en 3 Rum och Kök på 74 kvm, en nyproducerad bostad i den nya framväxande stadsdelen GoCo. 

-Hyra: 13 455 kr/mån

-Diskmaskin 

-Induktionshäll med inbyggd ugn

-Inbyggd mikrovågsugn 

-Tvättmaskin och torktumlare

-Balkong 

-Förrådsutrymme i lägenhet 

Hyran avser 2026 års hyresnivå.

På planritningen kan du se vart i huset lägenheten är belägen och i vilket väderstreck den ligger. Bilderna i annonsen är exempelbilder från likvärdiga lägenheter i samma hus. Skillnader & normalt slitage kan förekomma i lägenheten.
Golvets tränyans kan skilja sig åt.

Kostnaden för el, ...
Skärmbild 2026-04-16 102456.jpg

Andra liknande bostäder