Lagerbladsgatan 2, Angered

Gårdsten overview.JPG
hus c,d.jpeg
badrum.jpeg
Kök.JPG
Sovrum.JPG
Vardagsrum.JPG
1812-1199.JPG
1/7
1812-1199.JPG
Alla bilder (6)
Gårdsten overview.JPG
exteriört
hus c,d.jpeg
exteriört
badrum.jpeg
interiört
Kök.JPG
interiört
Sovrum.JPG
interiört
Vardagsrum.JPG
interiört

Om hyresrätten

Välkommen hem!
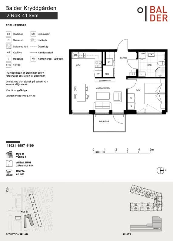
Nu finns chansen att hyra en nyproducerad lägenhet på Lagerbladsgatan 2 – en modern 2 ROK på 41 kvm, belägen på våning 1. Lägenheten byggdes 2022 och är perfekt för den som söker ett fräscht och funktionellt boende. Hyresavtalet löper från 1 Januari och hyran är 7 038 kr/mån. Hyran avser 2025 års hyresnivå. Här hittar du allt du behöver för ett bekvämt hem, inklusive diskmaskin, keramikhäll, ugn, kyl/frys, mikrovågsugn och kombimaskin för tvätt/tork.

Lägenhetsförråd finns i bostaden.

På planritningen kan du se vart i huset ...
1812-1199.JPG

Andra liknande bostäder

Ansök