



















Alla bilder (20)




















Till salu2:A PÅ 50 M²9023-4904
Stilren tvårummare högt upp i Twisten
Lodjursstråket • Göteborg - Karlastaden
Välkommen till ett modernt och välplanerat hem på våning 39 där du bor med ett lugnt läge som ger ett jämnt ljusinsläpp och en stillsam atmosfär.
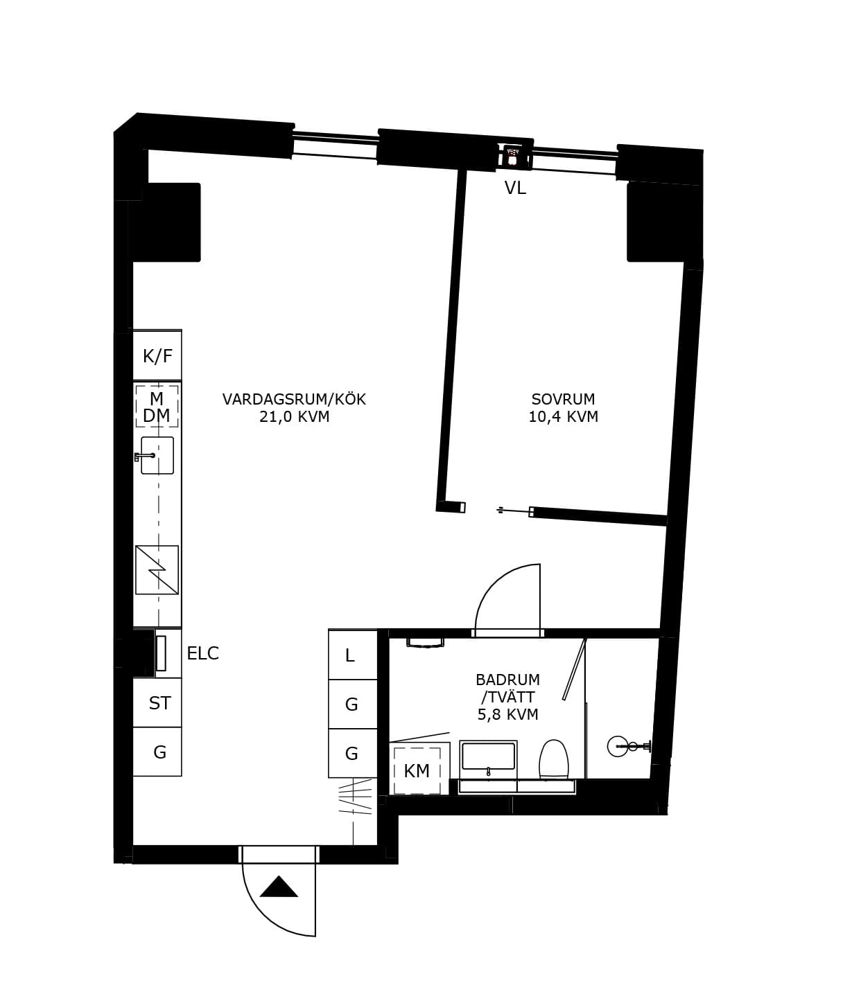
Kök och vardagsrum ligger i öppen planlösning och bjuder på en social och trivsam yta. Det stilrena köket från HTH är smakfullt utformat med moderna materialval och utrustat med kvalitetsvitvaror från Electrolux. Intill finner du ett rofyllt sovrum med fönster mot lummiga vyer – perfekt för avkoppling och återhämtning. Badrummet är helkaklat och utrustat med dusch, toalett samt en praktisk kombimaskin som underlättar vardagen.
Att ...
Kök och vardagsrum ligger i öppen planlösning och bjuder på en social och trivsam yta. Det stilrena köket från HTH är smakfullt utformat med moderna materialval och utrustat med kvalitetsvitvaror från Electrolux. Intill finner du ett rofyllt sovrum med fönster mot lummiga vyer – perfekt för avkoppling och återhämtning. Badrummet är helkaklat och utrustat med dusch, toalett samt en praktisk kombimaskin som underlättar vardagen.
Att ...
Kontakta oss Vi hjälper dig gärna med dina frågor och funderingar.
Labinot Aruqaj Mäklare på Fastighetsbyrån
Catharina PödlerMäklare på Fastighetsbyrån
Twisten
Våningar: 39-57
Upplåtelseform: Bostadsrätt
I avgiften ingår värme, medlemskap i bilpool och faciliteter. Klicka här för att läsa mer om faciliteterna som ingår vid köp av en bostad i Twisten.
UpplåtelseformBostadsrätt
Pris3 445 000 kr
Avgift4 277 kr/mån
InflyttInflyttningsklart
Våning i byggnad39
Objektnummer9023-4904
Visningar
DokumentVälkommen på visning! Vänligen kontakta mäklaren för att boka tid.
18Nov
TisdagKl 16:15 - 17:15
PlanlösningSe bostadens disposition och övrig information, som mått och rummens placering
Twisten | Vån. 39-57Göteborg - Karlastaden

INTE BARA EN UNIK BOSTAD
I avgiften ingår tillgång till gym samt flera bokningsbara rum såsom konferensrum, bio och aktivitetsrum. Det finns en takterrass med trädgård och ytor för avkoppling. För sociala tillställningar finns en bokningsbar lokal med kök och matplats. Dessutom erbjuds ett skötselrum för hunden samt medlemskap i bilpool för smidig mobilitet.


