
Till salu4:A PÅ 110 M²9023-5505
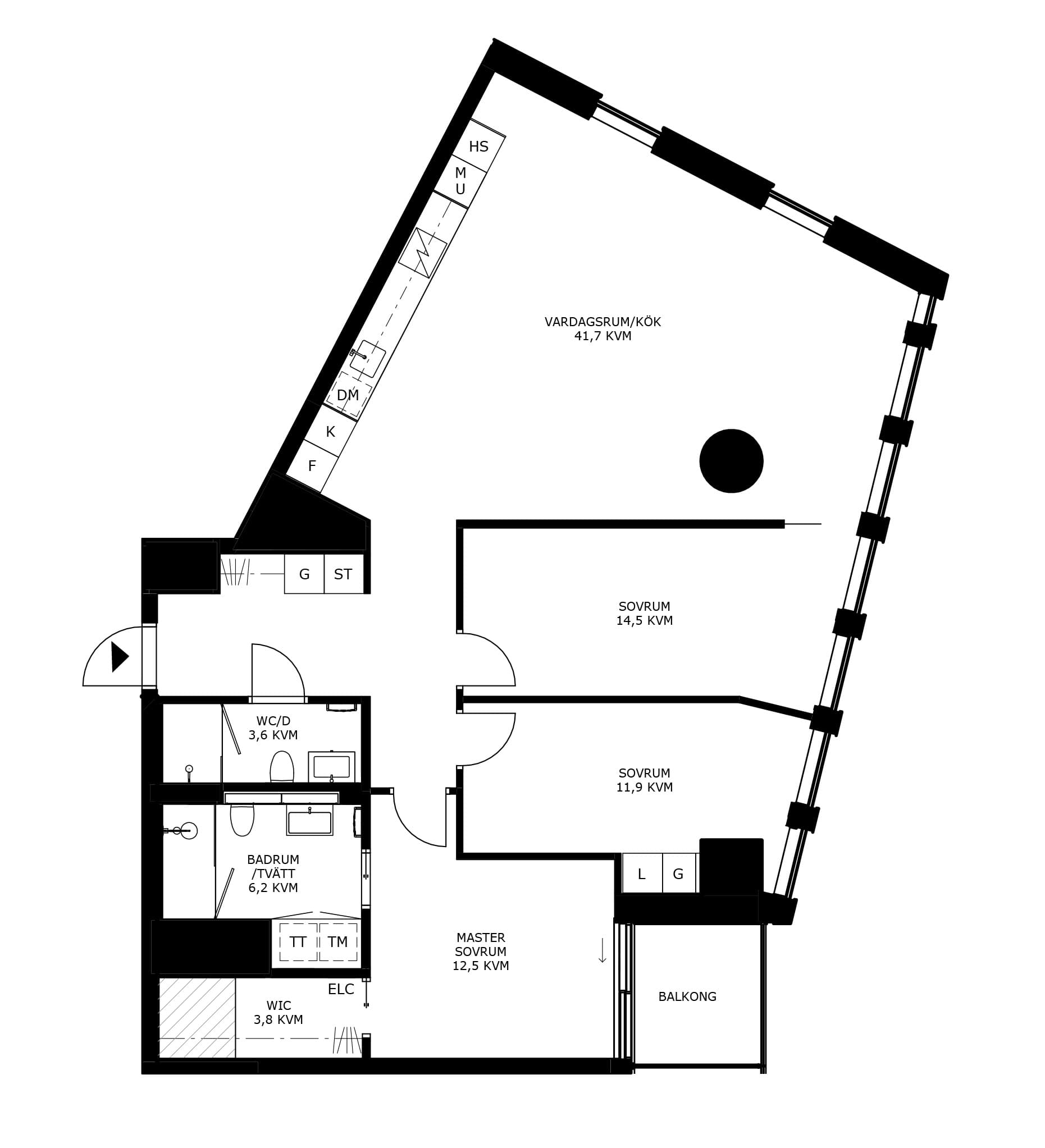
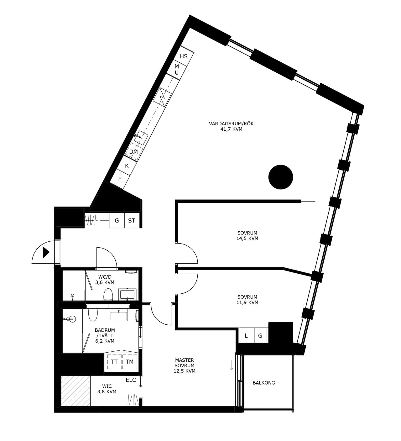
Fyra rum och kök med utsikt mot läppstiftet
Lodjursstråket • Göteborg - Karlastaden
Välkommen till ett stilfullt hem på våning 45 i Karlatornet!
Här bor du med fönster i två väderstreck och vy mot Göteborgs välkända siluett. Den öppna planlösningen mellan kök och vardagsrum ger ett socialt och luftigt intryck, där det stilrena köket från HTH smälter in med moderna materialval och vitvaror från Electrolux.
Bostadens tre sovrum har alla utsikt mot läppstiftet. I master bedroom väntar extra komfort med en generös walk in closet samt badrum en-suite som är utrustat med både tvättmaskin och torktumlare för en smidig vardag. Från master bedroom ...
Här bor du med fönster i två väderstreck och vy mot Göteborgs välkända siluett. Den öppna planlösningen mellan kök och vardagsrum ger ett socialt och luftigt intryck, där det stilrena köket från HTH smälter in med moderna materialval och vitvaror från Electrolux.
Bostadens tre sovrum har alla utsikt mot läppstiftet. I master bedroom väntar extra komfort med en generös walk in closet samt badrum en-suite som är utrustat med både tvättmaskin och torktumlare för en smidig vardag. Från master bedroom ...
Kontakta oss Vi hjälper dig gärna med dina frågor och funderingar.
Labinot Aruqaj Mäklare på Fastighetsbyrån
Catharina PödlerMäklare på Fastighetsbyrån
Twisten
Våningar: 39-57
Upplåtelseform: Bostadsrätt
I avgiften ingår värme, medlemskap i bilpool och faciliteter. Klicka här för att läsa mer om faciliteterna som ingår vid köp av en bostad i Twisten.
UpplåtelseformBostadsrätt
Pris8 775 000 kr
Avgift7 452 kr/mån
InflyttInflyttningsklart
Våning i byggnad45
Objektnummer9023-5505
Visningar
DokumentInom kort får du mer info om visningar
I dagsläget har vi inga visningar på detta objekt men så snart vi har visning är du välkommen
PlanlösningSe bostadens disposition och övrig information, som mått och rummens placering
Twisten | Vån. 39-57Göteborg - Karlastaden

INTE BARA EN UNIK BOSTAD
I avgiften ingår tillgång till gym samt flera bokningsbara rum såsom konferensrum, bio och aktivitetsrum. Det finns en takterrass med trädgård och ytor för avkoppling. För sociala tillställningar finns en bokningsbar lokal med kök och matplats. Dessutom erbjuds ett skötselrum för hunden samt medlemskap i bilpool för smidig mobilitet.


